Westbridge Commercial Ltd
Close X

Find your next property...

Photo 1
Photo 2
Photo 3
Photo 4
Photo 5
Photo 6
Photo 1
Photo 2
Photo 3
Photo 4
Photo 5
Photo 6
More about this property

509 sq ft (47.30 m2)

Two Offices Rooms

Gated Site

Private Car Park

£495 pm + VAT (£5,940 pa + VAT)

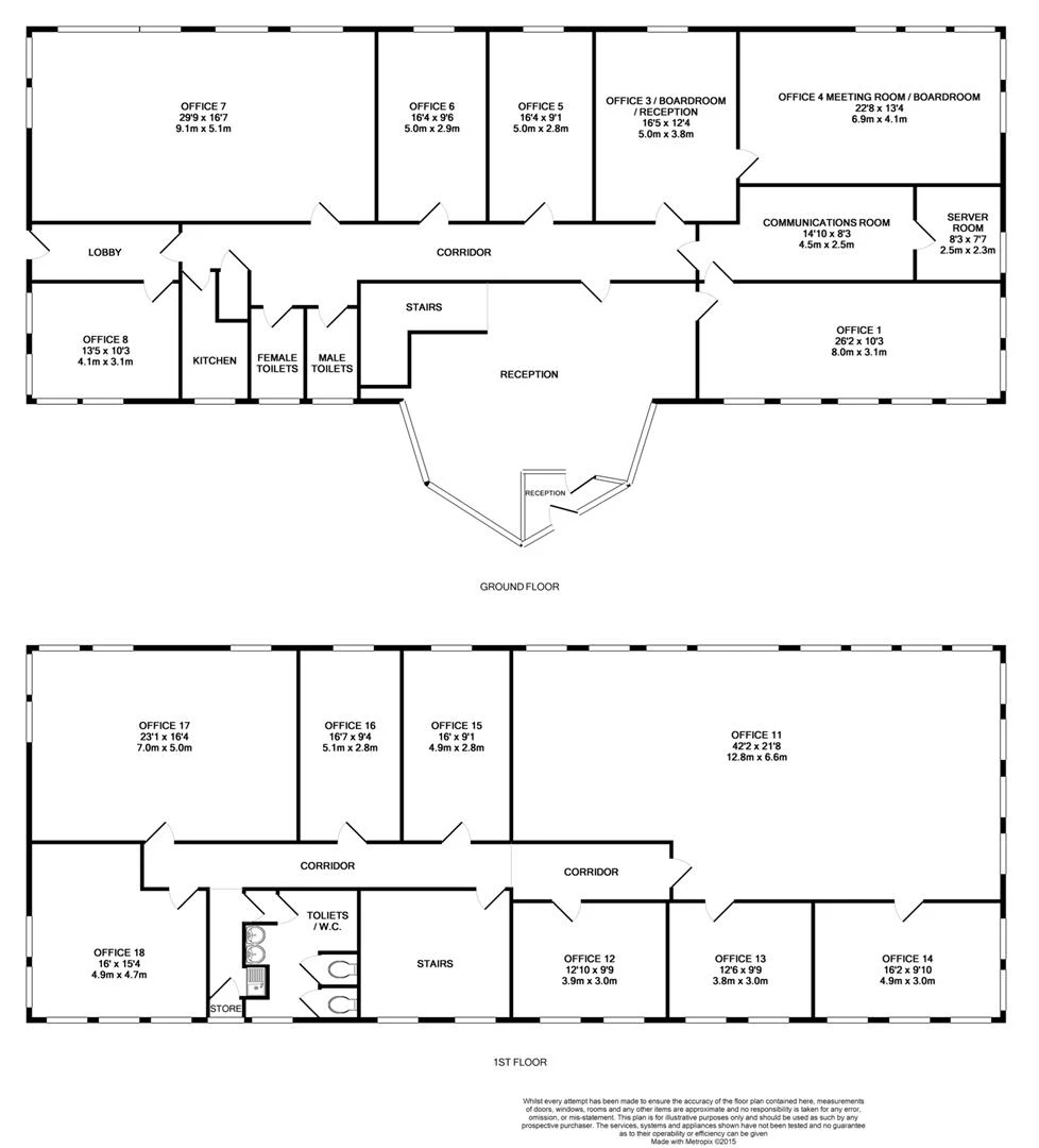
TO LET - A versatile ground floor office space which includes two interconnecting office rooms known as Office 3 and Office 4 located within a secure gated site just off Tything Road on the popular Arden Forest Industrial Estate. £495 pm + VAT with a service charge payable of £107.74 pm + VAT.

Arrange a Viewing

From the main reception area is the ground floor corridor that takes you to the door of Office 3. Office 3 measures approximately 16.5 ft by 12.4 ft (5 m x 3.8 m) with carpeted floor freshly painted walls and a window to the rear elevation. The main door has a five lever mortice lock on it making the office self-contained and there are 13 amp sockets in various locations as well as a suspended ceiling. From Office 3 is the door way to office 4 which is a longer room measuring 22.8 ft long by 13.4 ft wide (6.9 m by 4.1 m). The office has carpeted floor, painted walls windows on the rear and side elevation, 13 am sockets, electric heaters and a suspended ceiling.

The general utility running costs are covered by a service charge which includes: Water & Sewerage, Buildings Insurance, Communal Heating & Lighting, Communal Cleaning, Communal Gardening, Heating & Lighting in Office, Communal Window Cleaning Externally & Re-stock of facilities i.e. soap & toilet paper. The Service charge is £107.74 pm + VAT.

16.5 ft x 12.4 ft = 204 sq ft
5 m x 3.8 m

Office 4
22.8 ft x 13.4 ft = 305 sq ft
6.9 m x 4.1 m

IMPORTANT NOTICE FROM WESTBRIDGE COMMERCIAL

Descriptions of the property are subjective and are used in good faith as an opinion and NOT as a statement of fact. Please make further specific enquires to ensure that our descriptions are likely to match any expectations you may have of the property. We have not tested any services, systems or appliances at this property. We strongly recommend that all the information we provide be verified by you on inspection, and by your Surveyor and Conveyancer.

Westbridge Commercial Ltd
Close

Letting Fee Information

The asking rent does not include letting fees. Our standard administration fee (which covers general administration and preparation of paperwork) is £xxx (£xxx+VAT). A security deposit, usually equivalent to six weeks rent, is also payable.

Depending on your circumstances and the property you select, one or more of the following may also be charged to you upfront;

Fees may be charged on a per person or per property basis, please call us on 01789 415628